Продам дом, коттедж 119 м.кв.

на карте
Просмотров 6
9 000 000 руб.
на 10% дешевле похожих объектов ?
Раменское , Земляничная ул., д.147
Сергей
Показать телефон
Данные актуальны на 14.04.2026
Пожаловаться на объявление
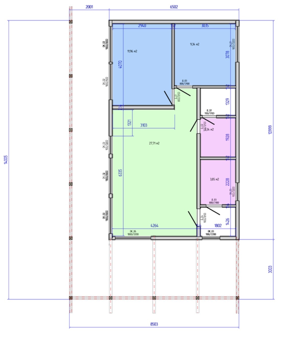
Продаётся абсолютно новый дом размером 8,5м*14м., построенный по всем правилам каркасного домостроения с использованием только качественных материалов камерной сушки, обработкой огнебиозащитой, противопожарной фаской, на ЖБ свайном фундаменте. Дом расположен в закрытом, охраняемом коттеджном посёлке для комфортного и круглогодичного проживания. В Коттеджном Поселке есть детская и волейбольная площадка. Участок 10 соток — ровный, чистый, в окружении лесных массивов, что особенно красиво открывается из панорамных окон теплого дома. У дома просторная терраса 47,5 м2, которая значительно расширяет жилое пространство в тёплое время года. Тёплый контур дома — 6,5 м* 11 м, включает: 2 спальни (12 м2 и 9 м2) со вторым светом и панорамными окнами; Кухню-гостиную 28 м2 со вторым светом и панорамными окнами; Санузел; Сауну; Техническое помещение.( Возможна установка газового котла, унитаза, раковины, стиральной машины и раковины) Все коммуникации заложены. Тамбур Дом подключён к центральному водоснабжению и канализации! Вам не придется думать о скваженных насосах,откачке канализации о бактериях и прочем обслуживании всех коммуникации! Канализация центральная, как в квартире (смыл и забыл)! Дом полностью автономен, а за его состоянием вы можете наблюдать по камерам, управлять через проведенный оптоволоконный скоростной интернет ( включая въездные ворота участка). Газ проходит рядом и его можно подключить подав заявку. Под газовое отопление в доме выполнена скрытая разводка труб для радиаторов отопления. В доме смонтирована качественная электропроводка с защитой от перенапряжений ударов молнии и утечек тока. По всему дому уложен тёплый пол с управлением через Wi-Fi с телефона. Отделка: Имитация бруса на стенах, потолок - Штиль; Пол- ламинат под дерево; Техническое помещение: стены-имитация бруса, пол - Керамогранит. Сауна: стены - Вагонка Штиль из Липы класса А (без сучков), пол- Керамогранит; Санузел — Комбинированная отделка крашенной имитации бруса с Керамогранитом на стенах и полу; Установлены качественные межкомнатные двери Участок полностью огорожен, установлены откатные ворота с автоматикой и калитка. Управление воротами — также через телефон. Собственная система видеонаблюдения. Территория коттеджного посёлка охраняется, есть видеонаблюдение, детская и волейбольная площадки. Зимой дороги регулярно чистятся. Многие соседи проживают круглогодично.

Параметры здания

Тип дома - Год постройки 2026 Количество этажей 1 Туалет Есть Отопление Есть Возможность прописки -
Электричество Есть Газ - Вода Есть Канализация Есть Гараж -

Параметры объекта

Количество комнат 2 Покрытие пола - Телефон - Интернет Есть
Мебель - Бытовая техника - Кондиционер -

Параметры продажи

Тип продажи - Торг Да
Ипотека Да

Параметры участка

Площадь участка 1000 м.кв.
Динамика изменения цен на рынке недвижимости ?

За последние полгода средняя сумма за кв.м. уменьшилась на 63 руб. Колебание цен происходило от 83462 руб. до 83568 руб. На текущий момент наблюдается тенденция к росту цены.
Похожие объявления
Обновлено
15.04.2026
Фотографии
15
Объявление 5064060
Раменское, Земляничная ул., д.147
9 000 000
руб. Продажа
119 м2
Обновлено
03.04.2026
Фотографии
10
Объявление 5053372
Раменское, деревня Сафоново, 2-я Совхозная улица
11 600 000
руб. Продажа
134 м2
Обновлено
01.04.2026
Фотографии
10
Объявление 5032130
Раменское, село Никитское, д.10
7 045 200
руб. Продажа
132.8 м2
Вход в личный кабинет